Baeza tendrá un marcado de abastos turístico y gastronómico
La alcaldesa en funciones señala que los trabajos de remodelación integral concluirán a finales de 2024

La alcaldesa de Baeza en funciones, Lola Marín, presenta el proyecto para el nuevo mercado municipal

úBEDA
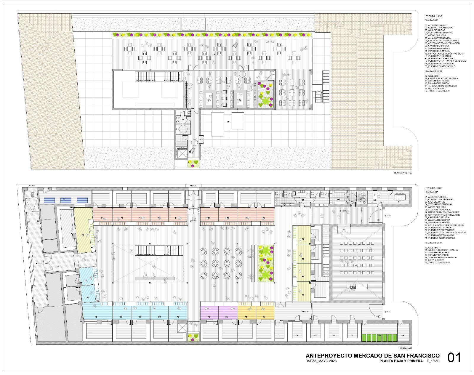
Un Mercado para Baeza, turístico y gastronómico. Son las líneas maestras del proyecto de remodelación integral del Mercado de Abastos de Baeza; completar su modernización con la creación de un espacio gastronómico en la planta superior y renovar los puestos de venta.
En este sentido, la regidora en funciones, Lola Marín, ha detallado que “se trata de un proyecto muy completo que tiene como finalidad la conversión del espacio en un recurso atractivo, que reúna las necesidades de los visitantes, pero también de los propios mercaderes, ofreciendo así una experiencia 360º, adaptando el edificio a un modelo de mercado de abastos moderno, funcional y práctico”.

Planos nuevo mercado de abastos de Baeza

Planos nuevo mercado de abastos de Baeza
Así las cosas, se llevará a cabo el arreglo integral del edificio del Mercado de San Francisco cuya intervención consistirá en el arreglo de las cubiertas, de la planta baja y la planta superior, el suelo y todos los puestos de venta.

Planos del nuevo mercado de abastos de Baeza

Planos del nuevo mercado de abastos de Baeza
Marín ha fechado la conclusión de los trabajos para finales de 2024 e, igualmente, ha dado cuenta de las razones por las que la redacción del mismo se ha demorado en el tiempo, fundamentalmente “que cubriera todas las necesidades de las partes implicadas en el edificio de San Francisco”.




