Sale a concurso la redacción del proyecto para terminar la rehabilitación del Teatro Torcal de Antequera
El plazo de presentación de ofertas estará abierto hasta el 21 de agosto

Recreación virtual de la reforma del Teatro Torcal de Antequera / SER Andalucía Centro

Antequera
El Ayuntamiento de Antequera ha sacado a concurso la redacción del proyecto para terminar las obras de remodelación del Teatro Torcal. La licitación se ha publicado esta pasada medianoche en la Plataforma de Contratación del Sector Público. El presupuesto es de algo más de 145.000 euros. El plazo de presentación de ofertas estará abierto hasta el 21 de agosto.

Fachada principal del Teatro Torcal de Antequera / SER Andalucía Centro

Fachada principal del Teatro Torcal de Antequera / SER Andalucía Centro
Obras paralizadas desde hace un año
Es un paso clave para reanudar los trabajos de rehabilitación del principal espacio escénico y cultural de Antequera, cerrado desde hace más de cinco años. El nuevo proyecto debe recoger las actuaciones que faltan para la finalización de una reforma que se paralizó hace un año cuando estaba al 40 por ciento. El motivo, los diferentes modificados que hubo que ir introduciendo por el estado del edificio y que superaron el límite establecido por ley.

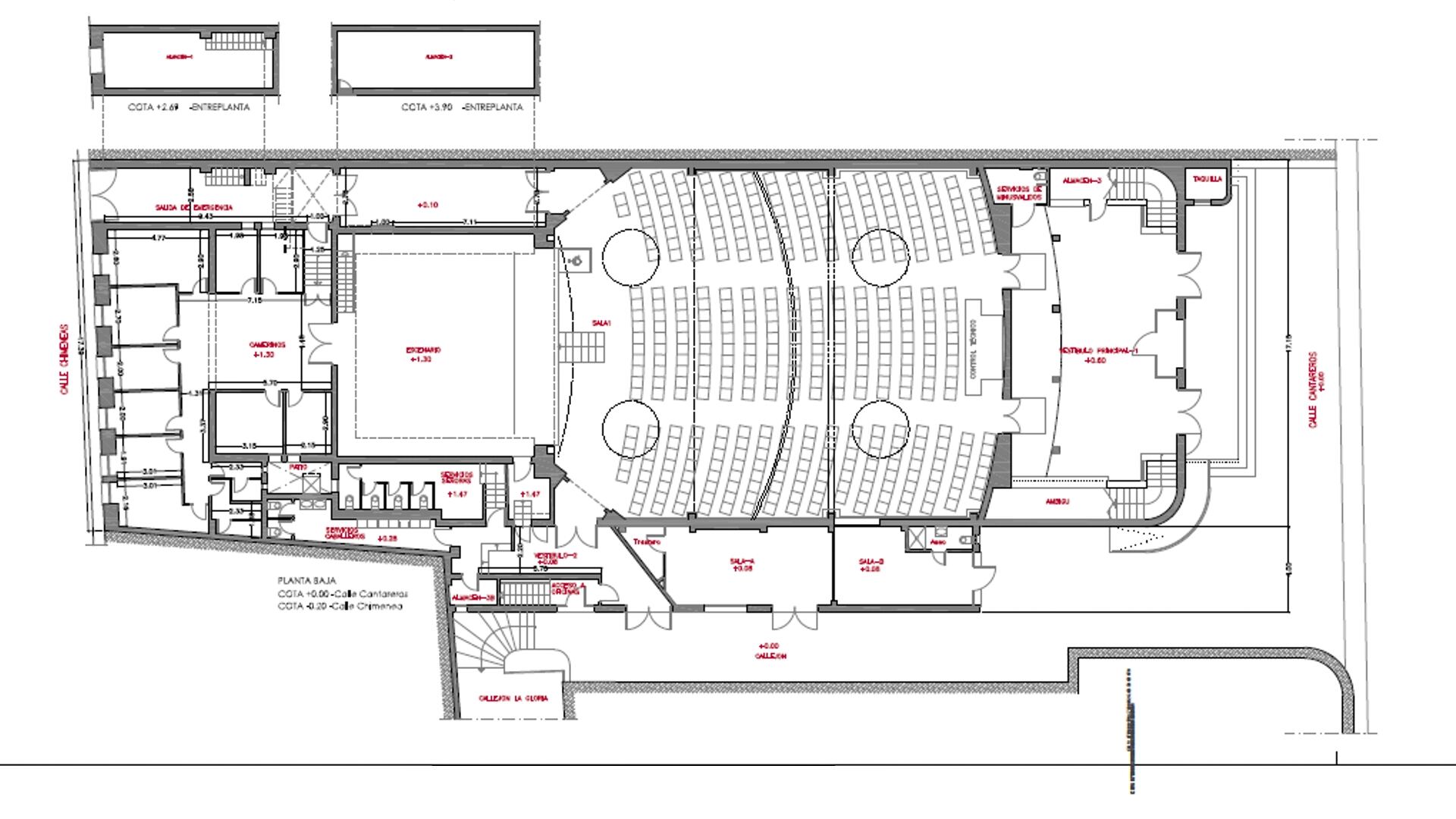
Plano de la planta principal del Teatro Torcal de Antequera / SER Andalucía Centro

Plano de la planta principal del Teatro Torcal de Antequera / SER Andalucía Centro
Más de 2 millones de inversión prevista
El Ayuntamiento aprovechará para incluir todas las actuaciones que faltan, con una inversión de 2.040.000 euros. Según los datos recogidos en el pliego consultados por SER Andalucía Centro, 925.0000 corresponden al modificado que hay pendiente de ejecutar, 150.000 al patio de butacas y su mobiliario, 420.000 para las máquinas de climatización, 445.000 para el equipamiento de la caja escénica y 100.000 euros más para la incorporación al teatro como espacio en blanco de la zona actualmente ocupada por oficinas. El proyecto debe contemplar además un plazo de ejecución de las obras de 2 años y 8 meses.
De momento, lo que sale a concurso es la redacción del proyecto y dirección facultativa de dichas obras de “Terminación, rehabilitación y modernización del Teatro Torcal”. Según apuntó el alcalde Manuel Barón hace apenas unos días, el objetivo es que la adjudicación se haga para octubre. De forma paralela se trabaja ya en la licitación de las obras.




