Sale a licitación la fase 1 del proyecto de reparación de cubiertas del Ayuntamiento de Huesca
El arquitecto redactor es Joaquín Sánchez Climent, que prevé un plazo de ejecución de 4 meses
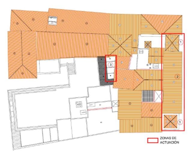
Tres zonas de la cubierta del Ayuntamiento de Huesca donde se va a actuar: en los torreones Norte y Sur (1), en el faldón sobre la galería (2), y en la cubierta interior (3)
Huesca
El ayuntamiento de Huesca ha sacado a licitación las obras contenidas en el “Proyecto de reparación de cubiertas de la Casa Consistorial. Fase 1”, con un presupuesto inicial de 184.000 euros, y un plazo de ejecución de 4 meses. El plazo para presentar ofertas acaba el 22 de enero.
Según el proyecto redactado por el arquitecto Joaquín Sánchez Climent, en primer lugar se deberán acometer las actuaciones en cubiertas y fachadas, por ser las más urgentes y las que, si no se llevan a cabo, pueden suponer el progresivo deterioro del edificio.
Torreón norte del Ayuntamiento de Huesca, cuya cubierta se cambiará, al igual que en el torreón sur
Torreón norte del Ayuntamiento de Huesca, cuya cubierta se cambiará, al igual que en el torreón sur
En los torreones norte y sur se plantea la sustitución completa de la cubierta, estructura de madera incluida. También se sustituirá el remate del muro con un nuevo vierteaguas cerámico en pendiente.
Faldón sobre la galería corrida entre los torreones
Faldón sobre la galería corrida entre los torreones
En lo que es el faldón sobre galería corrida entre los torreones también se plantea la sustitución completa. En el caso del alero situado sobre esta galería, que data de los años 1569 al 1571, obra de talla del más puro estilo renacentista, cualquier actuación deberá contar con la supervisión de un profesional especializado en la conservación y restauración de edificios y estructuras históricas.
Cubierta interior sobre la conserjería
Cubierta interior sobre la conserjería
También se actuará en la cubierta interior metálica sobre la conserjería, planteando la sustitución de la zona opaca de la cubierta, que se encuentra deformada, y manteniendo las zonas acristaladas.

Nuria Garcés
Periodista en Radio Huesca, desde 1991. Me gusta la información cercana y, sobre todo, las entrevistas....




