El PSOE de Fraga alerta del sobrecoste de la obra de reurbanización de la Plaza España


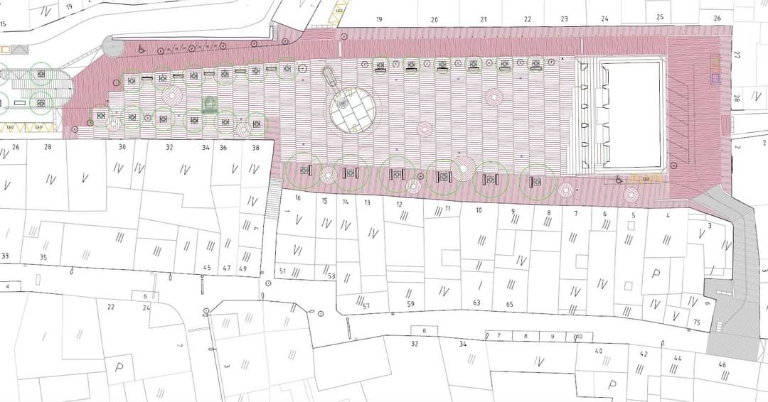
El Grupo Municipal Socialista en el Ayuntamiento de Fraga advierte del aumento "del coste que supondrá reurbanizar y peatonalizar la Plaza de España", incluida en el proyecto de protección del Pou de Gel, y que en contra de la opinión mayoritaria de los vecinos, "pretende llevar a cabo el equipo de gobierno y sus socios". Hecho que han denunciado en la última comisión de hacienda celebrada en el Ayuntamiento, "donde se les informo que debido a esta peatonalización hacia necesario adquirir para posteriormente derribar, una vivienda en la calle San Antonio, y poder derivar la circulación del tráfico".
A este nuevo gasto, que entre adquisición, derribo y pavimentación del solar, que aseguran que rondaría más de 50.000€, habría que sumar el proyecto del ascensor de La Pista, que fue licitado por 124.000€ y quedó desierto, por lo que se espera una nueva licitación cercana a los 150.000€, que sumados al 1.879.034,23€ de la licitación del propio proyecto y a los más que posibles aumentos de costes no contemplados en el mismo, de un gasto excesivo e innecesario para la ciudad, para tratarse de un capricho y no una necesidad ni una mejora, y que además eliminará cerca de 40 de las escasas plazas de aparcamiento disponibles en la zona.




