Así será la futura plaza de la Calle Seis de Junio de Valdepeñas (Ciudad Real)
La Cadena SER ha tenido acceso al proyecto de construcción de este nuevo pulmón verde en una de las arterias principales de esta población de Ciudad Real

Imagen del solar en donde se ubicará la futura plaza pública de la Calle Seis de Junio de Valdepeñas (Ciudad Real) / Alejandro Martín Carrillo

Valdepeñas (Ciudad Real)
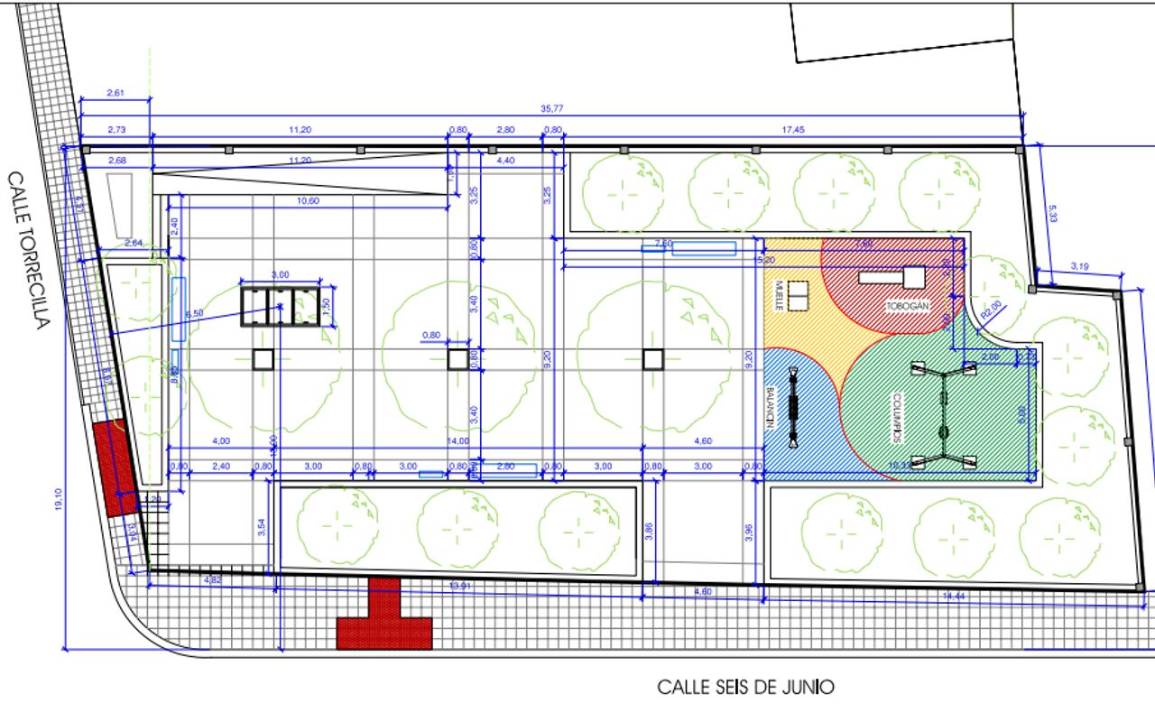
La Cadena SER ha tenido acceso al proyecto completo de construcción de la que será la primera plaza pública ubicada en la Calle Seis de Junio de Valdepeñas. Unas instalaciones que contarán con algo más de 600 metros cuadrados y en la que se invertirán 101.100 euros para su construcción. Este nuevo pulmón verde se ubicará junto a la UNED de esta población de la provincia de Ciudad Real. Con ello, se creará una zona de descanso en una de las arterias principales de Valdepeñas.

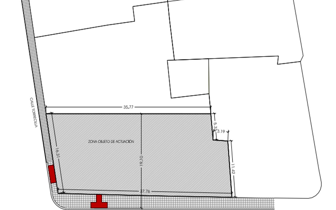
Imagen de la zona de actuación de la futura plaza pública de la Calle Seis de Junio de Valdepeñas (Ciudad Real) / Cadena SER

Imagen de la zona de actuación de la futura plaza pública de la Calle Seis de Junio de Valdepeñas (Ciudad Real) / Cadena SER
Una intervención en la que se incluye la creación de una zona infantil. De este modo, se ubicará un columpio, un balancín, un tobogán y un muelle para el disfrute de los más pequeños. Además, esta actuación contempla la plantación de acacias y moreras para proporcionar sombra en esta zona de Valdepeñas. Todo ello, para que pueda ser una zona de relax para cualquier ciudadano, incluido en la época veraniega.
Unas obras de creación de este espacio público al aire libre que se iniciarán en próximas semanas y que tienen un plazo de ejecución de cinco meses. No obstante, estas actuaciones no abarcan la totalidad del solar vacío que hay actualmente en esta confluencia de las Calles Torrecillas y Seis de Junio de Valdepeñas. Todo ello, porque abarcará la mitad de ese terreno y, en principio, el resto del solar podría destinarse a la construcción de un bloque de pisos, tal y como ha podido conocer SER Valdepeñas. Un solar que ocupa unos 1.000 metros cuadrados en pleno corazón de la ciudad del vino.

Imagen de la zona de actuación de la futura plaza pública de la Calle Seis de Junio de Valdepeñas (Ciudad Real) / Cadena SER

Imagen de la zona de actuación de la futura plaza pública de la Calle Seis de Junio de Valdepeñas (Ciudad Real) / Cadena SER
Además, este espacio público se unirá al que se creará junto al aparcamiento de la Calle Seis de Junio y al que se inaugurará en próximas semanas enfrente del Pabellón Ferial Esteban López Vega. Espacios que buscan ser un área de descanso para los diferentes vecinos de la zona y para aquellas personas que salen a andar o practicar deporte por la Avenida del Vino o Avenida de las Tinajas de esta localidad de Ciudad Real.


Alejandro Martín Carrillo
Doble graduado en Periodismo y Comunicación Audiovisual por la Universidad Rey Juan Carlos. Coordinador...




