Aprobada la reparcelación de Meta en Talavera, "el proyecto más importante en décadas"
El Gobierno de Castilla-La Mancha se ha congratulado de esta noticia, que supone un paso más para la llegada del gigante tecnológico a la región

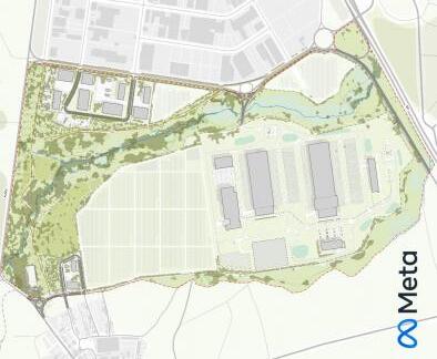
Proyecto de Singular Interés "Meta Data Center Campus" en el municipio de Talavera de la Reina / JCCM

Talavera de la Reina
Nuevo avance en la llegada de la compañía Meta a Talavera. Este lunes, el Diario Oficial de Castilla-La Mancha ha publicado una resolución de la Dirección General de Planificación Territorial y Urbanismo, por la que se inicia el procedimiento de aprobación y se somete a información pública el proyecto de reparcelación derivado del Proyecto de Singular Interés (PSI) Meta Data Center Campus en Talavera de la Reina.
La documentación será expuesta al público durante un periodo de un mes que comenzará este martes, 25 de noviembre. De esta manera, la información estará abierta a fin de que cualquier persona interesada pueda consultarla y, en su caso, formular las alegaciones que estime oportunas.
De igual modo, cualquier persona interesada que desee consultar presencialmente el documento podrá dirigirse a los servicios centrales de la Consejería de Fomento, en concreto, a la Dirección General de Planificación Territorial y Urbanismo.
El código iframe se ha copiado en el portapapeles
Hoy por Hoy Matinal Talavera (24/11/2025)
"El proyecto más importante en las tierras de Talavera"
El presidente del Ejecutivo autonómico, Emiliano García-Page, ha celebrado la noticia, "un paso necesario para el inicio de la ejecución de este PSI, y que constituye el más importante en las tierras de Talavera en decenas y decenas de años".
Así lo ha puesto de manifiesto el presidente regional en Garciotum, en la provincia de Toledo, durante la inauguración de la ampliación de la sección del Colegio Rural Agrupado (CRA) 'Tierras de Viriato'.
Celebración unánime en Talavera
La reparcelación constituye un hito que han celebrado tanto el Gobierno municipal de Talavera como la oposición. Por un lado, Jesús García-Barroso, portavoz del Ayuntamiento, ha indicado que "es una buena noticia, todo son pasos que contribuyen, en definitiva, a permitir fraguar el espacio físico donde la empresa Meta deseamos que cuanto antes empiece su implantación".
Ha coincidido en congratularse el portavoz del Grupo Municipal Socialista, Luis Enrique Hidalgo, que puntualiza: "nos alegramos porque es un trabajo arduo, que se inició la pasada legislatura con esa presentación, y con el apoyo incondicional, también, de la Junta de Comunidades de Castilla-La Mancha".

Carlos Sánchez Jiménez
Editor de informativos de Hoy por Hoy Talavera. Graduado en Periodismo por la Universidad Rey Juan Carlos...




