Así será el futuro Parque de Bomberos de Ciudad Real que triplicará el de Ronda de Toledo
Ya han comenzado las obras de la infraestructura que contará con una torre de entrenamiento de 7 plantas como emblema

Así será el futuro Parque de Bomberos de Ciudad Real
Ya les hemos contado que han comenzado las obras del futuro Parque de bomberos de Ciudad Real, tras la explanación de los terrenos, en breve se abordará la cimentación. Hoy en la SER les damos un avance de cómo serán las flamantes instalaciones que se ubicarán en una parcela en la Carretera de Piedrabuena.
Para ubicarles, es un terreno que linda con el Camino Viejo de Alarcos, tendrá acceso directo a la N430 y va a triplicar en superficie al parque existente en la Ronda de Toledo.

Imagen de las obras de planeamiento en el día de ayer / Emergencia Ciudad Real

Imagen de las obras de planeamiento en el día de ayer / Emergencia Ciudad Real
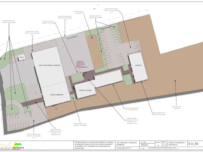
Es uno de los proyectos estrella que culminará, según las estimaciones del Consorcio, en febrero de 2027, con una inversión superior a los 5,4 millones y un plazo de ejecución de 14 meses. Ocupará un espacio de 32.200 m2 de los cuales 15.000 irán destinados al parque y sus servicios.

Plano de cómo se ha diseñado el nuevo Parque de Bomberos de Ciudad Real / Emergencia Ciudad Real

Plano de cómo se ha diseñado el nuevo Parque de Bomberos de Ciudad Real / Emergencia Ciudad Real
Las instalaciones: hangares, torre de entrenamiento y central de oficinas
Las obras se han dividido en 3 lotes; el primero la construcción del complejo y el parque, el segundo las obras de acceso al parque y centro de operaciones provinciales y el tercero, las obras de acometidas.
Parque de bomberos con hangares para 12 vehículos, con una zona para los vehículos de emergencia y otro de servicio y uso administrativo para el personal.

Imagen del edificio y los hangares / Emergencia Ciudad Real

Imagen del edificio y los hangares / Emergencia Ciudad Real

La imagen de la torre de entrenamiento, el emblema del Parque / Emergencia Ciudad Real

La imagen de la torre de entrenamiento, el emblema del Parque / Emergencia Ciudad Real
Llamará especialmente la atención la torre de entrenamiento, de 7 plantas, para realizar prácticas en altura y según recoge la memoria, será el emblema del parque, habrá una pista de trabajo aledaña donde se realizarán las pruebas contra el fuego y el rescate.
En la parte posterior la central de oficinas, con dos plantas y de formación. No faltarán las aulas para la realización de los cursos, gimnasio e incluso dormitorios para las zonas de descanso para los efectivos.

Edificios en el nuevo Parque de Bomberos / Emergencia Ciudad Real

Edificios en el nuevo Parque de Bomberos / Emergencia Ciudad Real
Habrá también un edificio de los almacenes de equipamiento y una superficie para helipuerto.
En palabras del presidente, Julian Triguero será uno de los Parques más modernos que va a contribuir a la mejora del servicio de emergencias en toda la provincia.

Julian Triguero, presidente del SCIS: "Será una infraestructura de vanguardia y un modelo en el ámbito del cuerpo de bomberos"
El código iframe se ha copiado en el portapapeles
Centro Operativo Provincial
Y sobre el COP, el Centro Operativo Provincial para la extinción de incendios forestales que estaba previsto en el proyecto original, por parte de la Junta de Comunidades, -en la legislatura anterior bajo el mandato de Jose Manuel Caballero,- el que es hoy gerente de Geacam Miguel Peña avanza en la SER que se mantiene su planificación con una inversión de 1 millón de euros.
Peña curiosamente fue el gerente del SCIS y el que diseñó este nuevo Parque de Bomberos y pone en valor la importancia, a nivel operativo de que la infraestructura se ubique junto al nuevo COP, haciendo hincapié que nuestra provincia es la que cuenta con mayor número de efectivos.

Carmen del Campo
Jefa de Contenidos del Grupo de emisoras en la provincia de Ciudad Real. Licenciada en "Periodismo"...




