El Edificio Infantes de la Residencia San José de El Burgo se convertirá en unidades de convivencia
El proyecto, impulsado por la Diputación Provincial, trata adaptar el edificio a las nuevas demandas de los residentes que buscan mayor independencia

La Diputación invertirá un millón de euros en la reconversión del Edificio Infantes / Cedida

La adptación del edificio forma parte del proyecto iMi hogar' que cuenta con un presupuesto de 1.242.000 euros financiado por la Unión Europea con fondos Next Generation, procedentes del mecanismo para la Recuperación, Transformación y Resiliencia.
Cuenta con un presupuesto de 1.031.101,50 euros redactado por los arquitectos Miguel de Lozar y Alfonso Sachez de Toca.
El presidente Benito Serrano ha destacado que el objetivo de este proyecto es ir adaptando las residencias de la institución a los nuevos tiempos, que demandan una mayor independencia de los residentes, con su espacio propio en apartamentos individuales, pero cobijados por los servicios de la Residencia San José de El Burgo de Osma.
"Se trata de conseguir que las personas se sientan como en su casa, por la autonomía que les proporciona el disponer de un espacio propio, pero con la ayuda necesaria que se brinda desde el centro para seguir teniendo en la vejez una buena calidad de vida"apunta el presidente.

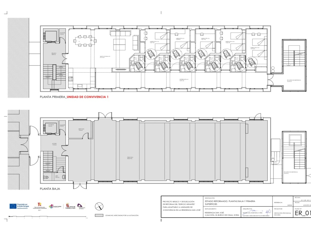
Plano del proyecto de reconversión del Edificio Infantes en unidades de convivencia / cedi

Plano del proyecto de reconversión del Edificio Infantes en unidades de convivencia / cedi
El proyecto recoge un total de 15 habitaciones, 5 en cada planta, 9 dobles y 6 sencillas, dotadas de baño con ducha, y cada planta tendrá además compartidos los espacios de cocina con comedor y un salón, sumando un total de 24 plazas.
Las unidades de convivencia disponen de un espacio habitacional y de baño de entorno a los 20 metros cuadrados para las habitaciones dobles y 16,5 metros cuadrados las sencillas, mientras que las zonas comunes, como salón, cocina y distribuidor ocupan 108 metros cuadrados por planta. En la planta baja se dispondrá de los ascensores, de un espacio para almacén, así como de un despacho y de una gran sala de 205 metros cuadrados.
La obra está adjudicada a la empresa Indesfor y el plazo para que el proyecto esté ejecutado es el segundo semestre del año 2026.

Eva Sánchez Ballesteros
Redactora de SER Soria. Presenta los informativos matinales y el Hora 14.




