L’Ajuntament de Tarragona vol construir 223 pisos de lloguer social amb els fons Next Generation
Els habitatges, energèticament eficients, de 78m2 es construirien al Pla Parcial 10 i el preu de lloguer seria de 6,63 €/m2

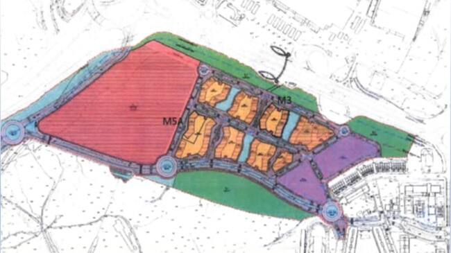
Planell dels habitatges / Ajuntament de Tarragona

Tarragona
L’Ajuntament de Tarragona ha presentat un projecte per a la construcció d’un total de 223 d’habitatges de lloguer social a la convocatòria dels fons Next Generation UE. Està previst que aquesta convocatòria es resolgui abans de l’octubre del 2022 i que les promocions es finalitzin abans del juny de 2026.
El Servei Municipal d’Habitatge de Tarragona (SMHAUSA) ha presentat dos sol·licituds, la primera és per la construcció a la parcel·la M3 del Pla Parcial 10 de 160 habitatges de 78m2 útils computables de mitjana amb 160 places d’aparcament, 160 trasters, així com 2 locals comercials i 25 places d’aparcament comercial en dos edificis de 6 i 14 plantes d’alçada més àtic, amb zona ajardinada i eficients energèticament. El pressupost de construcció és de 28,7 milions d’euros i s’ha demanat una subvenció de 6,9 milions d’euros. Els habitatges es llogaran a 6,63€/m2 i els aparcaments a 3,31€/m2.
La segona de les sol·licituds és per la construcció de 63 habitatges de 72 m2 útils computables de mitjana a la parcel·la M5, també al PP10. Es tractaria d’un edifici de 6 plantes més àtic que també inclouria 74 places d’aparcament i 2 locals comercials. En aquest cas el pressupost d’execució és de 11,5 milions d’euros i la subvenció sol·licitada és de 2,7 milions d’euros. Es preveu que la promoció es realitzi i gestioni directament des de SMHAUSA, tot i que es poden estudiar fórmules alternatives.
La consellera d’Habitatge i presidenta d’SMHAUSA Eva Miguel ha destacat que aquest projecte vol “facilitar l’accés al lloguer a persones que actualment, amb els preus de mercat, no poden accedir a un habitatge”, i “incidir amb els preus de mercat a la ciutat” amb aquest augment exponencial del parc d’habitatge de lloguer públic.




