Se inician las obras de ampliación del Punto Limpio del Parque Agroalimentario La Alcudia
La actuación, que estará finalizada a principios de 2023, ampliará su capacidad hasta los 45 contenedores

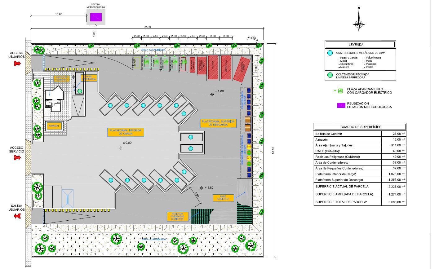
Punto Limpio del Parque Agroalimentario La Alcudia

Elche
La UTE Elche va a ejecutar durante los próximos cuatro meses las obras de ampliación del Punto Limpio del Parque Agroalimentario de La Alcudia que en estos momentos tiene una capacidad de depósito de 500 toneladas. La actuación permitirá pasar de 25 a 45 los contenedores que se destinarán a la recogida selectiva de diferentes fracciones de residuos como escombros, maderas y poda. Los trabajos de ampliación permitirán que este punto alcance los 3.600 metros cuadrados con 900 dedicados a zonas verdes para asegurar la integración paisajística en el Camp d'Elx. En los próximos días, se acometerá el desbroce y el traslado de una estación meteorológica ubicada en el terreno para, posteriormente, dar inicio durante tres semanas a las necesarias excavaciones arqueológicas por lo que se prevé que la renovación pueda estar concluida a finales de enero o principios de febrero de 2023.
El espacio contará con control de acceso digitalizado y un punto de información y concienciación para dar a conocer a los usuarios las campañas de la UTE Elche y resolver cualquier duda sobre la gestión de residuos. En cuanto a la organización interna del espacio, estará dividido en dos plataformas a las que se podrá acceder mediante automóvil: una inferior en la que se hallarán los 14 contenedores para grandes residuos, y otro superior que tendrá 28 contenedores distintos. Además, apostará por la eficiencia energética con iluminación led y cuatro puntos de recarga para vehículos de la UTE Elche. También servirá para continuar avanzando en el cumplimiento del Plan de Residuos de la Comunitat Valenciana y seguir implementando las mejoras de la nueva contrata de limpieza, en vigor desde mayo de 2021.
El concejal de Limpieza, Héctor Díez, ha señalado que, en principio, el ecoparque del Parque Agroalimentario continuará prestando servicio hasta que las obras de ampliación lo permitan. Cuando se tenga que cerrar, Díez ha señalado que la ciudadanía dispone del ecoparque de Carrús, así como nueve puntos limpios de proximidad, dos puntos limpios móviles, cinco miniecoparques y otros cinco microecoparques en mupis publicitarios.

Mario Abril
Periodista en Radio Elche Cadena SER, Elche 7 Tv y El País Comunitat Valenciana




