El Ayuntamiento de Villena adjudica la reforma integral del edificio del Consultorio Médico de La Encina
El proyecto de obra, que asciende a 112.000 euros, ha sido presentado hoy por el alcalde e incluye la rehabilitación del inmueble en su estructura, acabados e instalaciones básicas

El Alcalde, presentando el proyecto / Foto. A

Villena
El alcalde de Villena, Fulgencio Cerdán, ha presentado hoy el proyecto integral de reforma del inmueble del consultorio médico de La Encina que pretender actualizarlo para mejorar la atención sanitaria a la pedanía villenense, cuyas obras comenzará en las próximas semanas. El proyecto, que supera la inversión de 112.000 euros, se incluye dentro del Plan de Modernización de Villena, a través del cual se vienen ejecutando importantes obras en diferentes entornos de la ciudad.
El pasado lunes fue aprobado en Junta de Gobierno Local la adjudicación definitiva, después de una primera licitación que quedó desierta y que obligó al Ayuntamiento a la revisión de precios. Finalmente, la adjudicación supone un incremento de 12.000 euros con respecto a la primera propuesta publicada por el Ayuntamiento.

Una de las fachadas del edificio a restaurar / Foto. Facebook La Encina Pedan

Una de las fachadas del edificio a restaurar / Foto. Facebook La Encina Pedan
La actuación supone mejorar las estructuras del inmueble, su habitabilidad y la accesibilidad para ajustar estas dependencias a la norma actual de los centros médicos, consultorios y ambulatorios. Según el primer edil, es necesario acometer una actuación que impida las filtraciones de agua y humedades, renueve la instalación eléctrica, las conducciones de agua y el sistema de calefacción y de aire acondicionado.

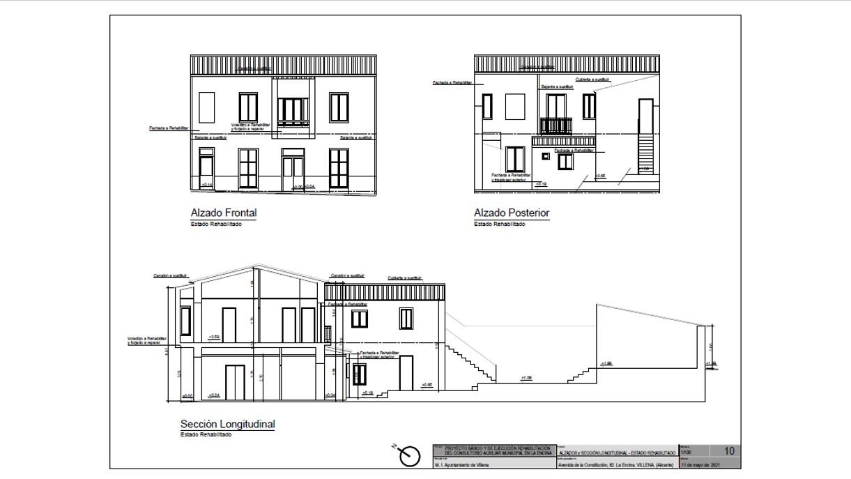
Planos del inmueble / Foto. A

Planos del inmueble / Foto. A
Cerdán ha explicado que se actuará en la planta baja del actual edificio, aunque también se mejorará la primera planta, antigua vivienda del médico en la pedanía.
“Hemos hecho importantes inversiones en La Encina en esta legislatura, desde el cambio de las luminarias hasta actuaciones urbanas que han mejorado la calidad de vida. Esta nueva iniciativa permitirá mejorar un servicio básico como es la atención sanitaria a los residentes de la pedanía”, ha comentado Cerdán.
Departamento de Comunicación
Ayuntamiento de Villena




