Cambios en el tráfico de La Vila Joiosa: así van a afectar las obras del parque Censal
Se corta el tráfico rodado en la vía de acceso desde la playa hasta la avenida País Valencià durante ocho meses


La Vila Joiosa
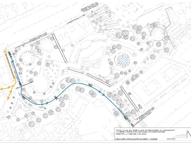
La vía de acceso que sube desde la avenida del Puerto hasta la avenida País Valencià, que bordea el parque Censal, será cortada al tráfico rodado de vehículos y se convertirá en un vial de uso peatonal desde este miércoles 13 de marzo. Este cambio de uso del vial se deriva del inicio de las obras rehabilitación y acondicionamiento de trazados para la accesibilidad en este jardín.
Está previsto que durante el período de ocho meses en el que e lleven a cabo estas actuaciones en el parque solo podrán circular los vehículos por la calle Censal, que accederán a ella desde la avenida del País Valencià con el fin de utilizar los aparcamientos dispuestos en los garajes privados existentes en la zona.

Sin embargo, durante los meses de verano, período durante el que se prevé mayor afluencia de peatones, se habilitarán zonas del parque Censal para garantizar la movilidad de los peatones entre la playa centro y el centro urbano, de manera que los viandantes podrán acceder a zonas determinadas que permitan su tránsito.




