Un Hotel en el Bulevard Ambrosio Cotes ampliará en 81 habitaciones la oferta hotelera en Villena
La Junta de Gobierno Local concede la licencia para la construcción

Alcalde y concejala de urbanismo / Radio Villena SER

Villena
El alcalde de Villena, Fulgencio Cerdán, acompañado por el edil de Urbanismo, Parques y Jardines, Francisco Iniesta, han anunciado la concesión de la licencia para la construcción de un nuevo hotel, aprobada por la Junta de Gobierno Local del lunes. Esta medida permitirá dar respuesta a la creciente demanda turística, ampliando la oferta hotelera en 81 habitaciones.

Planos del proyecto / Ayto Villena

Planos del proyecto / Ayto Villena
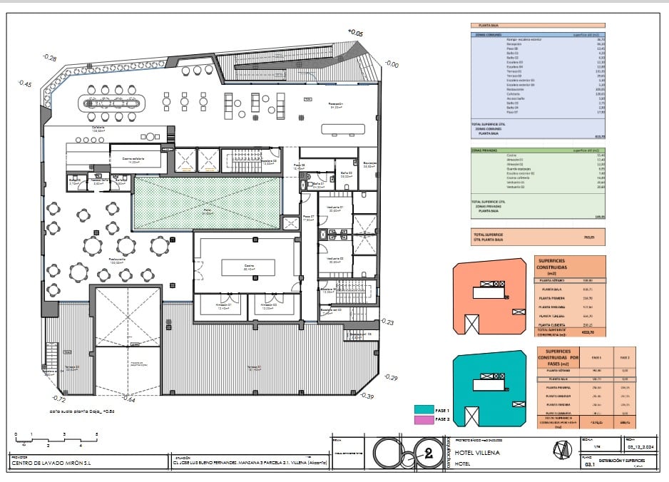
Desde la concejalía de Turismo, el Gabinete de Desarrollo Económico y Alcaldía se ha trabajado para dar respuesta a la necesidad de ampliar la oferta hotelera villenense, por los grandes eventos que acoge. Por ello, la ciudad de Villena, que actualmente dispone de 350 camas turísticas, ampliará su oferta con la construcción de este nuevo hotel que se ubicará en la zona del Bulevar, frente al IES Las Fuentes. Este nuevo establecimiento, que contará con un total de 81 habitaciones, complementará la oferta hotelera existente. La inversión prevista para este proyecto supera los 3.500.000€, y se estima que la obra estará concluida en un plazo de dos años.

Planos del proyecto / Ayt

Planos del proyecto / Ayt
La nueva infraestructura será una construcción de nueva planta que se erigirá sobre una superficie total de 5.000 metros cuadrados, distribuidos en cuatro plantas, un sótano y una terraza. El diseño contempla un aparcamiento en el sótano, mientras que la planta baja albergará la recepción, una cafetería y otros servicios. Las siguientes tres plantas contarán con 27 habitaciones por piso, mientras que la última planta del hotel contará con un gimnasio y una segunda cafetería.

Planos del proyecto / Ayto Villena

Planos del proyecto / Ayto Villena
Cerdán ha destacado que este trámite ya está cerrado, por lo que “la construcción del nuevo hotel de Villena es una realidad” y que “desde el Ayuntamiento vamos a trabajar de la mano de la constructora para que este proyecto vea la luz lo antes posible”.

Planos del proyecto / Ayto Villena

Planos del proyecto / Ayto Villena
Por su parte, el edil de Urbanismo ha destacado otros de los aspectos de la Junta de Gobierno, como la licitación de la redacción del proyecto de remodelación del Mercado Municipal, actuación necesaria para realizar dicha actuación. Este paso previo a la remodelación, que cuenta con una partida de 38.000€, se incluye en el marco de las remodelaciones de edificios públicos que se están llevando a cabo por parte del Ayuntamiento.

Planos del proyecto / Ayto Villena

Planos del proyecto / Ayto Villena




