'La Atalaya' será el primer centro infanto juvenil de Logroño
La junta de gobierno local adjudica su construcción por 1,1 millón de euros

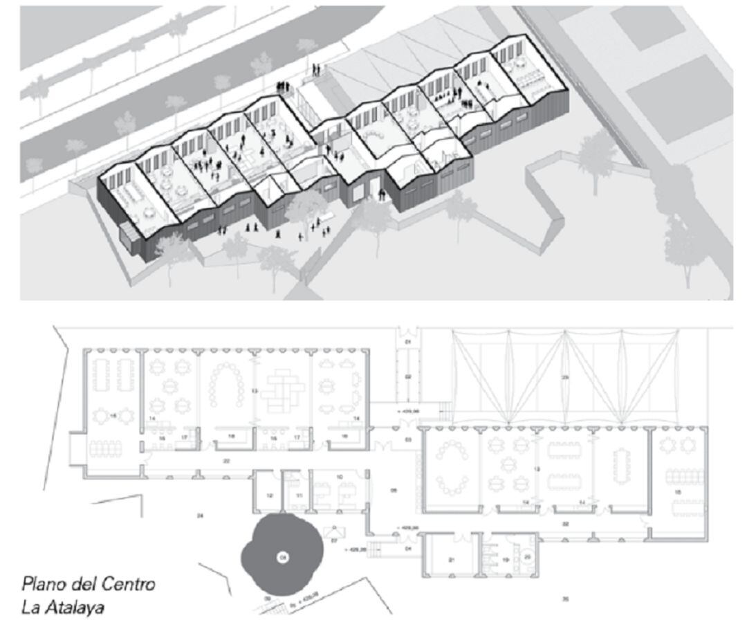
Plano del centro infanto juvenil La Atalaya / Ayuntamiento de Logroño

Logroño
La junta de gobierno local adjudica la construcción del centro infanto juvenil 'La Atalaya' en el barrio de Valdegastea por un importe de casi 1 millón de euros (973.312 euros). Se trata de un centro que dará cobertura a la atención de niños y jóvenes de entre 3 y 17 años, cumpliendo así con el papel de ludoteca y centro joven.
Según el equipo de gobierno será un espacio abierto a la educación y la cultura, dos elementos que servirán para mejorar la convivencia y fomentar la mirada crítica desde las edades más tempranas, con el objetivo de contribuir a la formación integral de los escolares logroñeses.
El nuevo espacio municipal se situará en el centro del barrio, en una zona verde localizada en la confluencia de la avenida de Francia y la calle Grecia. El edificio se construirá con criterios bioclimáticos y su consumo energético será casi cero.
Ding Dong
'La Atalaya' será el primer centro infato juvenil de la ciudad, es decir, el primero que albergará en sus instalaciones actividades tanto para niños como para adolescentes. Pero podría no ser el único, entre los proyectos heredados del anterior equipo de gobierno está el proyecto de otro centro intanto juvenil en las intalaciones del centro Ding Dong (en el entorno del parque San Miguel).




