Autorizada la construcción de las primeras viviendas de promoción pública en Albacete en 11 años
Son 88 casas que se ofertarán en régimen de alquiler y propiedad, ubicadas en el Sector 10, junto a la carretera de Valencia

Imagen de la zona en la que se construirán estas 88 viviendas, en el Sector 10 / Ayuntamiento de Albacete

El Ayuntamiento de Albacete va a recuperar la construcción de vivienda pública tras 11 años sin actividad. El Consejo de Administración de URVIAL ha dado luz verde al proyecto para edificiar 88 viviendas en el Sector 10, junto a la carretera de Valencia, que se ofertarán en régimen de alquiler y de propiedad.

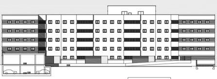
Imagen de la futura promoción pública / Ayuntamiento de Albacete

Imagen de la futura promoción pública / Ayuntamiento de Albacete
En concreto, serán 18 casas para alquiler y el resto en régimen de propiedad, para las personas que resulten adjudicatarias, siguiendo los criterios que establece la Junta de Comunidades de Castilla-La Mancha, administración que será quien apruebe esta distribución, según ha explicado el Ayuntamiento en nota de prensa.
El proyecto aprobado prevé una construcción de 12.739 metros cuadrados y un presupuesto de ejecución de 6.151.865 euros. Este nuevo edificio de vivienda pública tendrá una altura de cinco plantas, con varios portales de acceso, que se distribuirán en dos bloques, en los que también se construirán 100 plazas de garaje en una planta sótano.
Además, el equipo de gobierno tiene abierto en este momento el concurso para adjudicar tres solares, ofertados a cooperativas, para la construcción de vivienda pública, también en el Sector 10. La inversión será de 5,3 millones de euros, para construir unas 600 viviendas, en casi 100.000 metros cuadrados nuevos de terreno, según el ayuntamiento.




