Castelló licita las obras del nuevo centro de salud del grupo Benadressa por 131.600 euros
Amparo Marco destaca el proyecto que dignificará la atención sanitaria en la zona con la reforma y ampliación del local existente junto al colegio

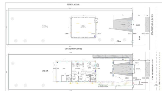
Imagen de los planos del consultorio auxiliar / Castellón

Castellón
El Ayuntamiento de Castelló avanza la tramitación para que el nuevo centro médico auxiliar del grupo Benadressa sea una realidad cuanto antes. El consistorio ha licitado las obras para la reforma del local, que será ampliado y acondicionado como ambulatorio.
Además, se aprovechará la intervención para reservar en el mismo edificio un espacio para el uso de la asociación de vecinos y vecinas. Es una obra valorada en 131.600 euros, con un plazo de ejecución de tres meses, que permitirá dignificar las instalaciones y hacerlas más accesibles, al tiempo que atenderá una demanda vecinal.
“Benadressa contará con un nuevo centro médico auxiliar que dará respuesta a una demanda de los vecinos y vecinas de la zona. Unas instalaciones nuevas, que mejorarán la atención a la ciudadanía, y que hemos proyectado desde el Ayuntamiento de Castelló”, ha explicado la alcaldesa, Amparo Marco. “Estamos avanzando ya con la licitación de las obras para que el nuevo ambulatorio de Benadressa sea una realidad cuanto antes”, ha destacado Marco.
Por su parte, el concejal de Urbanismo, José Luis López, ha detallado que el local que se reformará, que ocupará tras la ampliación prevista unos 147 metros cuadrados, aproximadamente, está situado junto al colegio público Benadressa, en la carretera Ribesalbes, número 49, en una zona más cercana al núcleo de viviendas de lo que estaba el antiguo local que ha acogido hasta hace meses el centro auxiliar médico del grupo. “Con esta obra dignificaremos la atención sanitaria, el vecindario tendrá más cerca el centro de salud y este será más accesible”, ha asegurado. “Además, se reservará un espacio para los vecinos y vecinas del grupo, que era una de sus demandas”, ha apuntado.
En base al proyecto que está en licitación, la ampliación del local existente en la actualidad es de unos 50 metros cuadrados, por lo que el edificio final ocupará una superficie de unos 147 metros cuadrados aproximadamente. La obra se financiará con fondos municipales y a través de una subvención del Reactivem Castelló-Obres de la Diputación Provincial.




