Cort planea una residencia para creadores en el futuro centro cultural de la antigua prisión
El ayuntamiento de Palma inicia los trámites de modificación del planeamiento aprobado el 1998

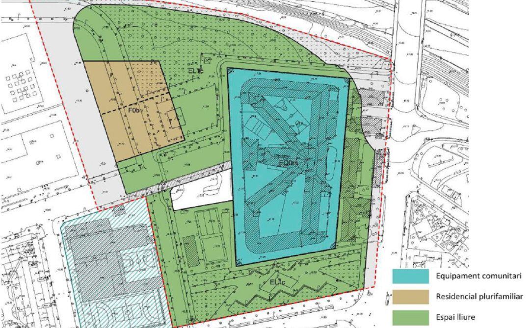
Plano de la propuesta de Cort. / AJUNTAMENT DE PALMA

Palma
El Ayuntamiento de Palma planea para el futuro centro cultural de la antigua prisión una residencia para creadores y un nuevo edificio con 103 viviendas públicas. Cort ha iniciado los trámites de modificación del planeamiento aprobado en 1998, que contemplaba derruir el edificio para crear una nueva calle. El actual consistorio considera la cárcel una parte del patrimonio de la ciudad que se debería conservar.
De hecho, durante el último año ya se han venido realizando actividades culturales como proyecciones de cine, o eventos de danza en el patio de la prisión. El concejal de cultura, Llorenç Carrió, defiende que el próximo paso es reformar el viejo edificio para habilitar un centro de creación, que a parte de ofrecer espacios, dará "la posibilidad de crear redes y sinergias entre los creadores".
Y pone el ejemplo de la recuperación en otras ciudades españolas de edificios en desuso como la cárcel de Segovia o la tabacalera de San Sebastián.
Además, planean crear en el mismo edificio de la prisión una residencia para estudiantes, investigadores y creadores, y rodear la antigua prisión de una zona verde de 17.000 metros cuadrados, que conectaría con la parte trasera de la escuela de Cas Capiscol. Además, como ya preveía el anterior planeamiento, se construiría un edificio con 103 viviendas públicas, con una guardería pública en la planta baja.
Según el concejal de Urbanismo, José Hila, el proyecto responde a "otra forma de hacer urbanismo y otro modelo de ciudad", y "da respuesta a las peticiones de las entidades".
El planeamiento supondría derruir las antiguas viviendas de funcionarios de la prisión, hoy llenos de basura y escombros. Mientras tanto, no se contempla limpiar esta zona.




