Comienzan las obras del edificio polivalente de Santa Gertrudis
Contará con espacios para actividades culturales y un Punt Jove para ofrecer opciones de ocio

Ayuntamiento Santa Eulària

Ibiza
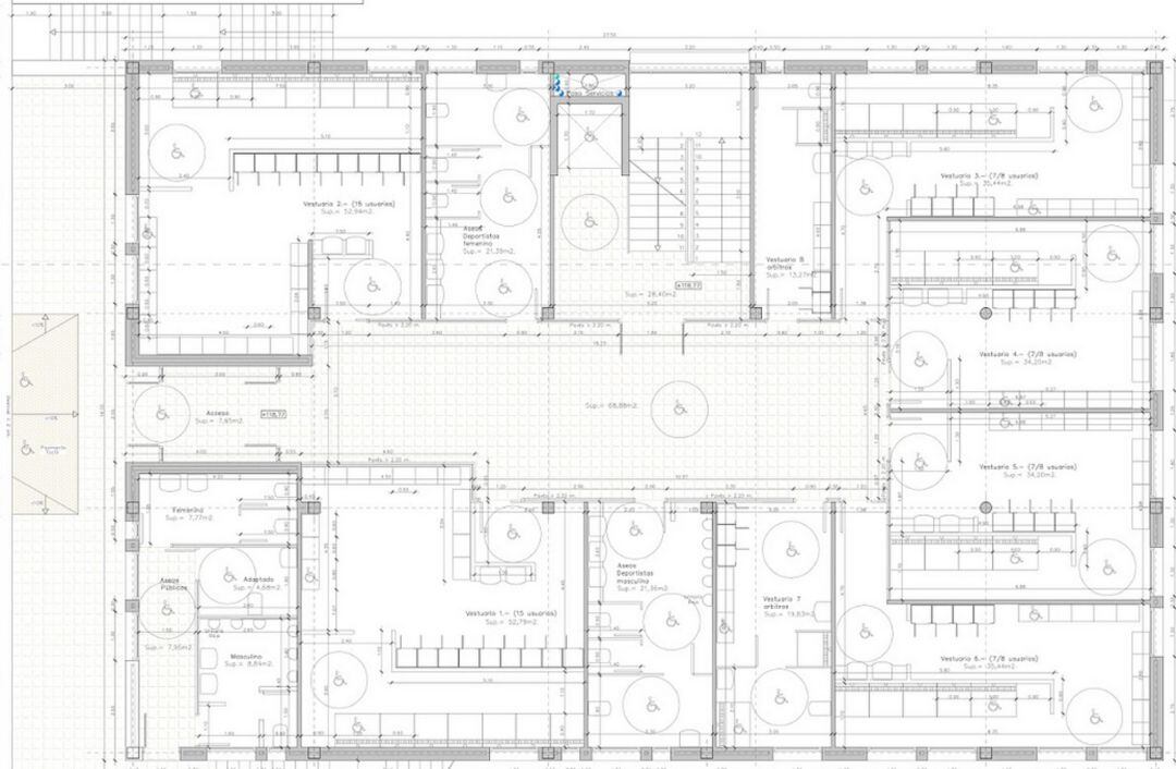
Ya han comenzado las obras de construcción del edificio polivalente de Santa Gertrudis. Albergará un centro sociocultural, vestuarios y un espacio destinado a las asociaciones y a los jóvenes. De hecho, está prevista la creación de un nuevo Punt Jove para ofrecer opciones de ocio a los menores
Desde el gobierno del Ayuntamiento de Santa Eulària dicen que esta nueva infraestructura complementa las instalaciones deportivas construidas en los últimos años y amplía la oferta de servicio para residentes.
El presupuesto es de 1,8 millones de euros y el plazo de ejecución de 24 meses.
El proyecto contempla una superficie de 1.233 metros cuadrados de espacios y servicios que se distribuirán en un edificio de tres plantas, una de ellas semisoterrada, porque según el gobierno local se quiere que el impacto visual sea mínimo.
Todas las instalaciones están previstas para personas con movilidad reducida por lo que se contará con rampas, accesos amplios y un ascensor.




