Cabanillas construirá Centro Fitness y ampliará la Biblioteca

Infografía Centro Fitness / Foto Ayto. Cabanillas

Cabanillas del Campo
El Ayuntamiento de Cabanillas del Campo acaba de licitar dos obras importantes: la construcción de un nuevo Centro Fitness Municipal y la ampliación de la Biblioteca.
En cuanto al Centro Fitness sale con un presupuesto de licitación de 2,7 millones de euros y las empresas interesadas tienen hasta el 9 de diciembre para presentar sus ofertas.
CARACTERÍSTICAS CENTRO FITNES
El edificio tendrá 1.500 metros cuadrados y se levantará en la parcela contigua a la piscina municipal de tal manera que compartirán entrada, zonas comunes y vestuarios.

Infografía interior Centro Fitness / Foto Ayto. Cabanillas

Infografía interior Centro Fitness / Foto Ayto. Cabanillas
Acogerá toda la actividad del programa municipal de Fitness que ahora se realiza en las salas del Polideportivo Municipal San Blas que se han quedado pequeñas ante la demanda de los vecinos. Hablamos de cardio, musculación, spining o bailes.
La obra tendrá un plazo de ejecución de 12 meses por lo que tras la adjudicación y demás trámites el ayuntamiento prevé que pueda estar finalizado para comienzos del año 2.022.
MÁS METROS PARA LA BIBLIOTECA
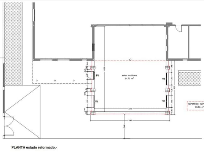
En cuanto a la Biblioteca, se amplíará la Sala Multiusos de la instalación que pasará de los 36 metros actuales a un total de 91 metros cuadrados. De este modo podrá acoger con más comodidad actividades como presentación de libros, conferencias o sesiones de narración oral funcionando como un pequeño salón de actos y liberando así a la Sala de Estudios que es donde se venían haciendo estas actividades.

Plano ampliación Biblioteca / Ayto. Cabanillas

Plano ampliación Biblioteca / Ayto. Cabanillas
El presupuesto base de licitación es de casi 81.000 euros y el plazo de ejecución de la obra, tres meses.
Son dos de los compromisos de esta legislatura por parte del gobierno de José García Salinas. Se retrasan, de nuevo, los planes para la construcción de la piscina cubierta que se quería haber abordado en el primer año de mandato, pero asegura el alcalde que, en todo caso, se realizará durante los cuatro años de legislatura
El código iframe se ha copiado en el portapapeles
José García Salinas, alcalde de Cabanillas, proyectos legislatura
MÁS DE 10 AÑOS DE PROMESAS
La construcción de una piscina cubierta en Cabanillas del Campo es una promesa recurrente de todos los gobiernos municipales desde hace una década. Ya en tiempos de Jesús Miguel como alcalde se llegó a presentar un anteproyecto muy ambicioso con varios vasos, chorros de agua y otras instalaciones, pero con la crisis económica se guardó en el cajón. En el año 2015 con Jaime Celada como alcalde se volvió a presentar un anteproyecto, en este caso recurriendo a la colaboración público-privada siguiendo el mismo modelo que tiene la capital con el Centro Acuático de la empresa SUPERA. Al final tampoco se realizó. El actual alcalde, José García Salinas, volvía a prometer en la última campaña electoral este tema anunciando además que en el primer año de mandato comenzarían los trámites.
Entre promesa y promesa el vecino municipio de Marchamalo fue más hábil y se adelantó construyendo la piscina climatizada en el Complejo García Fraguas, instalación que muchos cabanilleros que practican natación han estado utilizando estos años.

Jesús Blanco Orozco
Jefe de Informativos responsable de la información local. Carrera profesional desarrollada principalmente...




